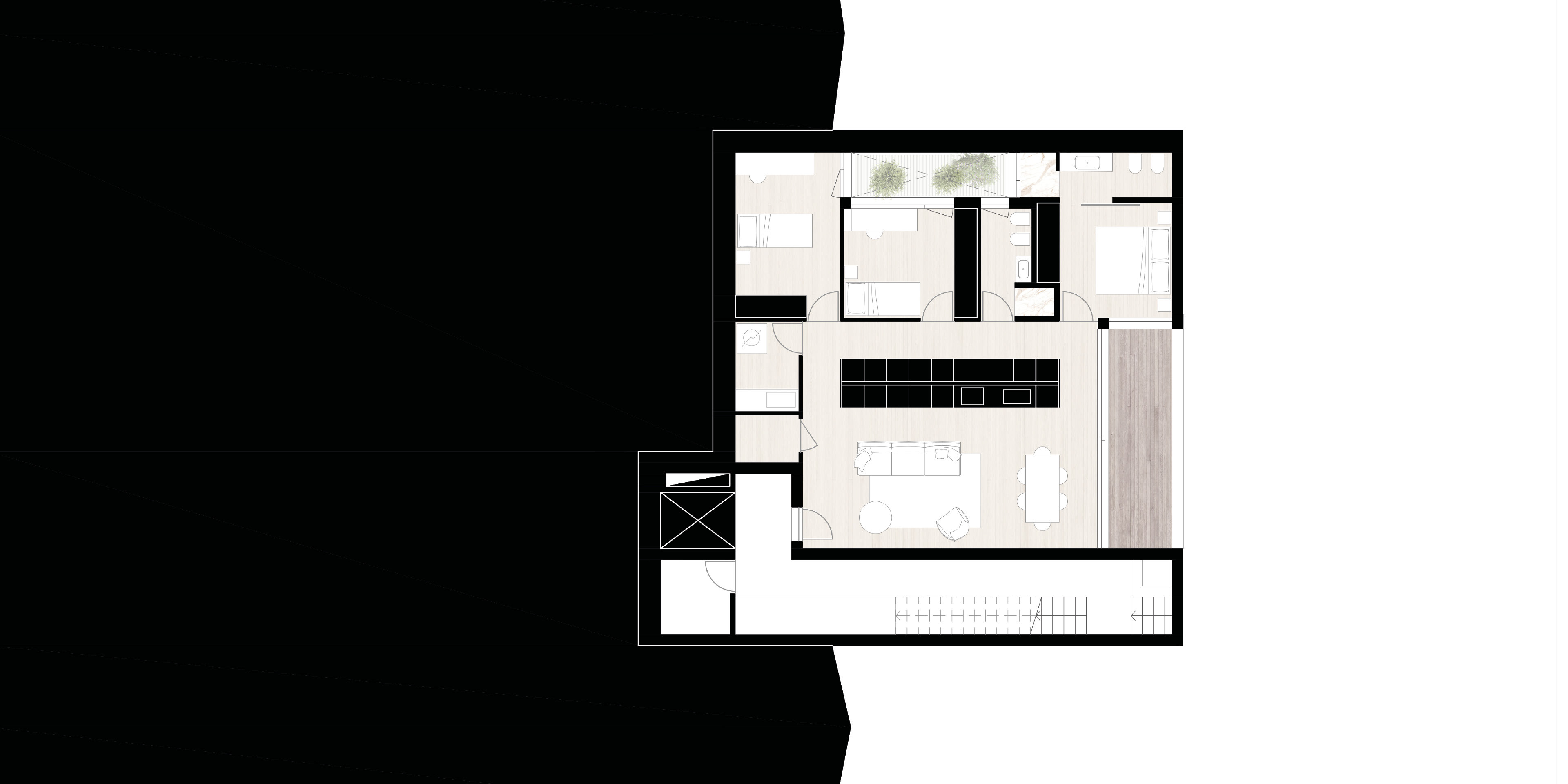
L'abitare collettivo in un intervento architettonico nel paesaggio che garantisce uno spazio esterno vivibile con la massima riservatezza ad ogni unità abitativa.
Questo sito si avvale di cookie. Se vuoi saperne di più o negare il consenso a tutti o ad alcuni cookie, consulta la cookie policy.Chiudendo questo banner, scorrendo questa pagina, cliccando su un link o proseguendo la navigazione in altra maniera, acconsenti all’uso dei cookie.
AccettaRifiuta